事業用賃貸物件一覧へ 事業用賃貸物件一覧へ トップページ
事業用賃貸物件一覧へ /トップページ


左入ウェルストーンⅢ
1階A店舗 月額賃料(税込) 374,000円  現空
交通

      ※図面と現況に相違がある場合は、現況優先とします。
物件写真
物件写真

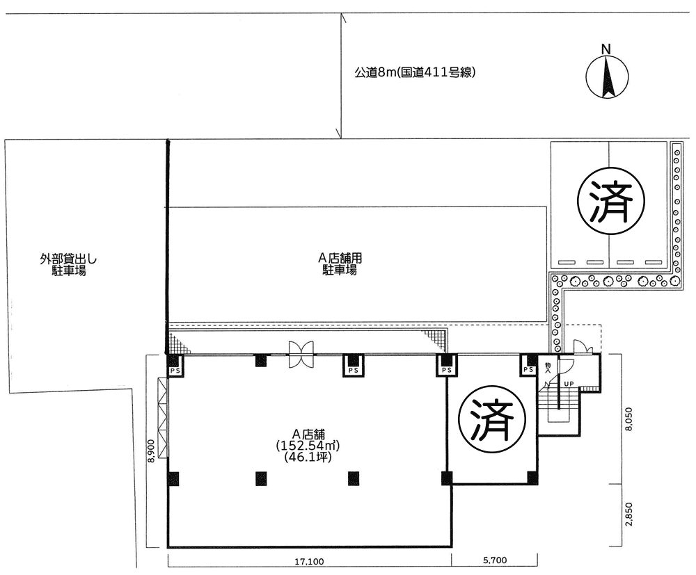
平面図
平面図

交通
現地案内図


現地周辺図



室内写真1 


室内写真2  室内写真3


室内写真4  室内写真5


価格
● 物 件 D A T A ●
物件種目  貸店舗
賃料  上記参照
礼金  上記参照
保証金  上記参照
所在地  東京都八王子市左入町381-1
交通  JR中央線「八王子駅」バス7分「道の駅八王子滝山入口」停歩9分
 JR中央線「八王子駅」バス20分「左入会館前」停歩2分
建物名  左入ウェルストーンⅢ
構造・規模  鉄骨コンクリート造陸屋根4階建
使用部分面積  A店舗:152.54㎡(46.1坪)
築年月  平成7年4月
契約期間  3年間
管理費等  A店舗:無  
土地面積  991.89㎡(300.05坪)
用途地域  第2種中高層住居専用地域
駐車場  A店舗:有(9台) 
現況  A店舗:現空
引渡可能時期  相談
接道状況  8m国道に間口が40m接する
本体設備  東京電力・公営水道・公営下水道・プロパンガス
その他 名称/左入ウェルストーンⅢ 1階A店舗
更新可、更新料新賃料の1ヶ月分(税込)
保証金償却なし
消防署への法定点検報告は借主負担
諸条件相談に応じます
敷地内部防犯カメラ6台設置
1階A店舗はスケルトン渡しとし、内部造作、内装は借主が費用を負担し行うものとする
貸主指定の火災保険に加入のこと
規定による仲介手数料が別途必要になります
このページのトップに戻るこのページのトップに戻る
メールを送る http://www.3dk.co.jp/